LINES & WARMTH
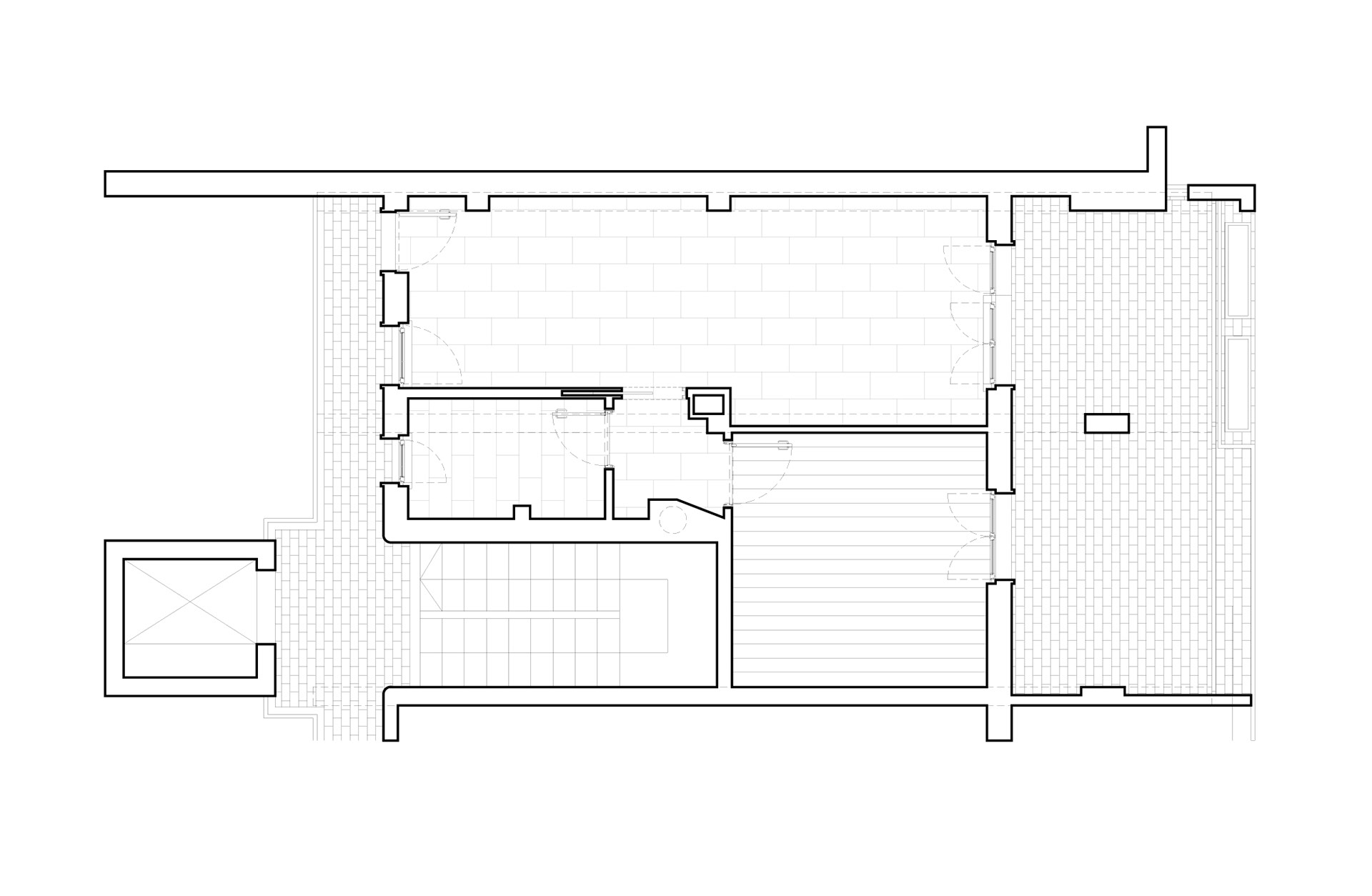
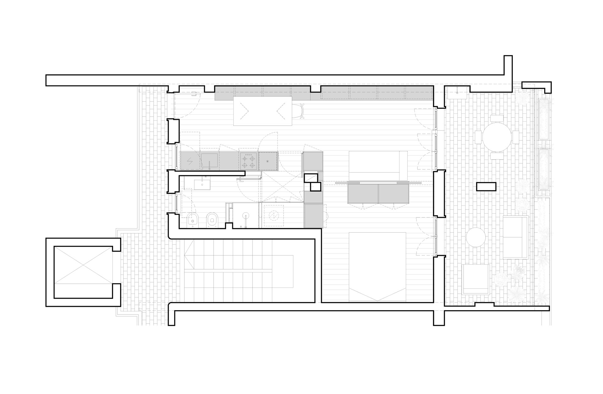
CDA Apartment, Milan is an interior renovation project that interprets contemporary living through an essential and rigorous language, rooted in Milanese tradition. The main space unfolds as a single, longitudinal environment, where the living, dining, and kitchen areas coexist without clear separations. The perception of space is enhanced by visual continuity, a light color palette, and careful attention to materials and details.
The original walls were completely removed, and custom-made furnishings – crafted in Ash and white Fenix panels – subtly define the different areas. The stainless steel kitchen, set within a linear volume, dialogues with the continuity of surfaces and the warmth of natural oak flooring. Chosen for its durability and resilience, stainless steel introduces a technical and industrial note that harmonizes with the neutrality of the white surfaces and the warmth of the light wood.
Full-height white volumes house storage units, helping to create a tidy and uncluttered environment. Furniture pieces, light and almost transparent, such as the glass dining table and metal chairs, minimize visual impact and reinforce spatial continuity. Discreet and minimalist lighting runs along the apartment’s longitudinal axis, without interrupting the formal clarity of the design. Natural light, pouring through the large windows overlooking the exterior, permeates the entire space, becoming an integral part of the project and enhancing the sense of openness and depth.
The result is a measured, functional, and elegant interior, where the combination of natural materials and technical surfaces achieves a refined balance—a contemporary home thoughtfully designed for Milan’s urban context.

DATA
Location: Milano – Italy
Year: 2024 – 2025
Area: 40 sqm
Client: Private
With: S. Sözüneri, M. Liccardo
Carpenter: Traxform
Photography: Francesca Iovene